話題の新築マンション「プレジリア代々木大山町」
気になるお部屋タイプを続々ご紹介してまいります!
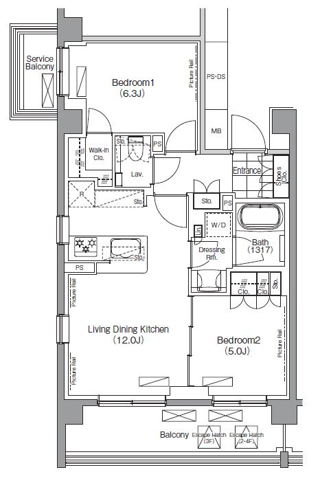
本日ご紹介するのは [type H]
12.0帖のLDKと6.3帖、5.0帖の2洋室からなる2LDKのお部屋。

メインのバルコニーに加え、サービスバルコニーのあるお部屋。
角部屋なので窓が多く、LDKが2面採光なのも高ポイントです!
キッチンに窓があるのも、爽やかで嬉しいですよね。
開放的で広さもあるカウンタータイプのキッチンは、
リビングをみながらお料理を楽しめますし、家族との
コミュニケーションも取れるので時間を大切にできますよ♪
リビングと隣の洋室の仕切りは引き戸となっており、
開け放って広々使うことも、サッと仕切ることもできるので
2LDKとしても、広めの1LDKとしても、用途やその時々によって
間取りを変えられて非常に便利なつくりとなっております。
玄関脇の洋室にはウォークインクローゼットを完備、
その他ストレージやクローゼットを各所に完備してあり
収納面でもゆとりのある間取り。
荷物がすっきり片付きますしお部屋数もあるので、
ご家族、カップル・新婚さんでも広々とお住まいいただける間取りです。
建物内の配置は↓のようになっております。




















