【代々木上原・代々木公園の賃貸】ハビタットTOP > 物件カタログ > オカバ世田谷深沢ヘーベルメゾン > 302

オカバ世田谷深沢ヘーベルメゾン 302

物件紹介

☆オカバ世田谷深沢ヘーベルメゾン、等々力駅より徒歩17分☆
猫さんと暮らそう!2025年9月竣工!床暖房をはじめハイグレードな室内設備や美しい内装を採用したプレミアムヘーベルメゾン、猫さんたちとラグジュアリーな暮らし。くぐり穴やキャットウォークなど猫さんが喜ぶたくさんの仕掛けを施したお部屋!多頭飼いもご相談ください!オートロック、宅配ボックス、無料Wi-Fi、駐輪場など欲しい設備はもちろん完備。

賃料
30.1万円
間取り
3LDK
専有面積
73.66㎡
所在階
3階
管理費・共益費
10,000円
敷金
0.5ヶ月
礼金
1ヶ月
  • お問い合わせ
  • 来店予約
  • 検討リストに追加
POINT
オートロック ペット可(猫のみ) 宅配ボックス 床暖房 太陽光パネル 駐輪場 太陽光パネルや高断熱材を使用し省エネに特化したZEHマンションなので光熱費も削減。

PHOTO GALLERY

印刷する
  • 【外観】 | オカバ世田谷深沢ヘーベルメゾン

    【外観】

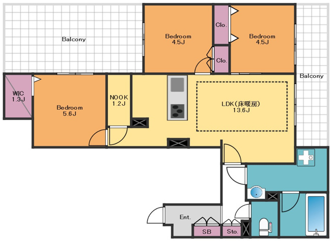
  • 【間取り】 | オカバ世田谷深沢ヘーベルメゾン | 猫さんにうれしい設備が盛りだくさん♪ファミリーにおすすめ3LDK

    【間取り】猫さんにうれしい設備が盛りだくさん♪ファミリーにおすすめ3LDK

  • 【外観】 | オカバ世田谷深沢ヘーベルメゾン
  • 【省エネ性能ラベル】 | オカバ世田谷深沢ヘーベルメゾン | 省エネ・高断熱のZEH対応マンション 光熱費を抑え、冬は暖かく、夏は涼しくお過ごしいただけます。
  • 【その他】 | オカバ世田谷深沢ヘーベルメゾン | 耐震・耐火構造で安心のヘーベルメゾン
  • 【その他】 | オカバ世田谷深沢ヘーベルメゾン | 敷地内ゴミストッカーあります!
  • 【エントランス】 | オカバ世田谷深沢ヘーベルメゾン | オートロック完備でセキュリティ面も安心
  • 【セキュリティ】 | オカバ世田谷深沢ヘーベルメゾン | 宅配ボックス完備なので留守がちでも安心ですね!
  • 【その他共用部分】 | オカバ世田谷深沢ヘーベルメゾン | 駐輪場は1世帯2台まで無料で使えます♪
  • 【居間・リビング】 | オカバ世田谷深沢ヘーベルメゾン | 開口がワイドで明るい設計のリビングでぽかぽか過ごせます♪
  • 【居間・リビング】 | オカバ世田谷深沢ヘーベルメゾン | 奥行きがありレイアウトしやすく暮らしやすいLDK。床暖房完備♪
  • 【内装】 | オカバ世田谷深沢ヘーベルメゾン | おうちがキャットタワーに♪ネコカベの設置可能です!
  • 【キッチン】 | オカバ世田谷深沢ヘーベルメゾン | 広々としてゆったりとお料理できますよ♪
  • 【キッチン】 | オカバ世田谷深沢ヘーベルメゾン | 3口ガスコンロ搭載、ガラス板採用!シースルーで開放的なキッチン!
  • 【キッチン】 | オカバ世田谷深沢ヘーベルメゾン | ゆったりとしたキッチンスペース♪
  • 【その他】 | オカバ世田谷深沢ヘーベルメゾン | 洗面所ひろびろ!動線もよく家事も捗ります♪
  • 【独立洗面台】 | オカバ世田谷深沢ヘーベルメゾン | 三面鏡タイプで何かと重宝する独立洗面台
  • 【設備】 | オカバ世田谷深沢ヘーベルメゾン | ドラム式も置けそうな大きめ防水パン
  • 【浴室】 | オカバ世田谷深沢ヘーベルメゾン | ゆったりと脚を伸ばしてくつろげるバスルーム
  • 【トイレ】 | オカバ世田谷深沢ヘーベルメゾン | 飾ってよし収納してよし、サイドの棚がさりげなく便利!
  • 【玄関】 | オカバ世田谷深沢ヘーベルメゾン | 玄関ライトは人感センサー搭載で自動的に点灯します♪
  • 【収納】 | オカバ世田谷深沢ヘーベルメゾン | 天井高まであるシューズボックスも収納力◎
  • 【収納】 | オカバ世田谷深沢ヘーベルメゾン | 収納が豊富にあるのも高ポイントですね!!
  • 【居間・リビング】 | オカバ世田谷深沢ヘーベルメゾン | どの部屋も採光がたっぷりで好きな場所で日向ぼっこできます♪
  • 【居間・リビング】 | オカバ世田谷深沢ヘーベルメゾン | 各居室、腰高に仕切りをもたせて猫さんのうっかり爪とぎに対応してます
  • 【収納】 | オカバ世田谷深沢ヘーベルメゾン | 猫さんのための専用ルーム完備!
  • 【内装】 | オカバ世田谷深沢ヘーベルメゾン | 小窓が興味をそそります(by猫)
  • 【居間・リビング】 | オカバ世田谷深沢ヘーベルメゾン | 明るいお部屋でゆったり過ごせそう♪
  • 【収納】 | オカバ世田谷深沢ヘーベルメゾン | 衣類だけでなくいろんな物をしまえるウォークインクローゼット
  • 【バルコニー】 | オカバ世田谷深沢ヘーベルメゾン | 日当たりのいいバルコニー、洗濯物も良く乾きそうです!
  • 【展望】 | オカバ世田谷深沢ヘーベルメゾン | 周辺は落ち着いた住宅街です♪
  • 【その他】 | オカバ世田谷深沢ヘーベルメゾン | ※モデルルーム ネコちゃんが喜びそうな空間ですね♪
  • 【その他】 | オカバ世田谷深沢ヘーベルメゾン | ※モデルルーム どんな家具にもマッチするお部屋です♪
  • 【その他】 | オカバ世田谷深沢ヘーベルメゾン | ※モデルルーム ネコちゃんも動きやすい広さがありますね♪
  • 【その他】 | オカバ世田谷深沢ヘーベルメゾン | ※モデルルーム ネコちゃん関連の収納もこちらにひとまとめ♪
  • 【その他】 | オカバ世田谷深沢ヘーベルメゾン | ※モデルルーム ネコちゃんのくぐりぬけにも適したスペース♪
  • 【その他】 | オカバ世田谷深沢ヘーベルメゾン | ※モデルルーム 窓の外も覗きやすい♪
  • 【外観】 | オカバ世田谷深沢ヘーベルメゾン | 騒がしすぎないちょうどいい立地!スーパーは徒歩2分♪2025年9月竣工!

※写真や図と実際の現状とが異なる場合は現状を優先させていただきます。

PANORAMA PHOTO

画像をクリックして視点を操作


  • リビング

  • キッチン

  • 洗面所

  • 洋室

  • 洋室

設備条件

  • ペット相談
  • 2人入居可
  • ファミリー向け
  • 室内洗濯機置場
  • フローリング
  • 都市ガス
  • 公営水道
  • 公共下水
  • エレベーター
  • 電気有
  • 駐輪場
  • 敷地内ごみ置き場
  • 耐震構造
  • ガスコンロ
  • コンロ2口以上
  • システムキッチン
  • コンロ3口
  • バス・トイレ別
  • 追焚機能浴室
  • 浴室乾燥機
  • 温水洗浄便座
  • 洗髪洗面化粧台
  • エアコン
  • 床暖房
  • BS
  • インターネット対応
  • ネット使用料無料
  • オートロック
  • TVモニタ付インターホン
  • 宅配ボックス

募集中物件情報

所在階 賃料 管理費 敷金/礼金/保証金/償却/敷引 間取り 専有面積 詳細 検討リスト
1 28.3万円 10,000円 0.5ヶ月/ 1ヶ月/ -/ -/ - 3LDK 71.28㎡ 詳細を見る 追加する
1 28.5万円 10,000円 0.5ヶ月/ 1ヶ月/ -/ -/ - 3LDK+1S(納戸) 70.18㎡ 詳細を見る 追加する
1 24.9万円 10,000円 0.5ヶ月/ 1ヶ月/ -/ -/ - 2LDK+1S(納戸) 80.49㎡ 詳細を見る 追加する
2 29.1万円 10,000円 0.5ヶ月/ 1ヶ月/ -/ -/ - 3LDK 69.82㎡ 詳細を見る 追加する
2 29.3万円 10,000円 0.5ヶ月/ 1ヶ月/ -/ -/ - 3LDK+1S(納戸) 70.06㎡ 詳細を見る 追加する
3 29.6万円 10,000円 0.5ヶ月/ 1ヶ月/ -/ -/ - 3LDK 69.36㎡ 詳細を見る 追加する
3 30.6万円 10,000円 0.5ヶ月/ 1ヶ月/ -/ -/ - 3LDK 72.82㎡ 詳細を見る 追加する
4 25.2万円 10,000円 0.5ヶ月/ 1ヶ月/ -/ -/ - 2LDK 66.35㎡ 詳細を見る 追加する
4 30.8万円 10,000円 0.5ヶ月/ 1ヶ月/ -/ -/ - 3LDK 74.09㎡ 詳細を見る 追加する

お問い合わせ

株式会社ハビタット

03-3460-4913

  • 〒151-0066
  • 東京都渋谷区西原3丁目2-2 

10:00~18:30  定休日:無し

物件概要

【マンション】 物件番号:97012110 情報更新日:2025年12月14日 次回更新予定日:2025年12月28日
所在地 東京都世田谷区深沢5丁目23-20
交通
間取り/詳細 3LDK
LDK 13.6帖/洋室 5.6帖/洋室 4.5帖/洋室 4.5帖/その他 1.3帖/その他 1.2帖
面積/バルコニー面積 73.66㎡/-
賃料 30.1万円 管理費・共益費 10,000円
敷金/礼金/保証金 0.5ヶ月/1ヶ月/- 償却/敷引 -/-
更新料 1ヶ月(新賃料) 敷金積み増し -
権利金/雑費 -/- 駐車場/月額料金 無/-
保険加入/料金 有/15,400円 保険名/保険期間 -/2年
保証人代行義務/利用料 必加入/ 初回:50%、2年目以降:20,000円/2年 保証会社 旭化成不動産サポート
保証会社詳細 - 向き 北東
築年月(築年数) 2025年 9月 (新築) 契約期間 2年
種別/構造 マンション/鉄骨造 部屋/所在階/階建 302/ 3階/ 4階建
総戸数 - 現況/入居可能日 完成済み/即時
特優賃 - 取引態様/賃貸区分 一般媒介/一般
物件番号 97012110 取引条件の有効期限 2025年12月28日
設備条件
  • ペット相談
  • 2人入居可
  • ファミリー向け
  • 室内洗濯機置場
  • フローリング
  • 都市ガス
  • 公営水道
  • 公共下水
  • エレベーター
  • 電気有
  • 駐輪場
  • 敷地内ごみ置き場
  • 耐震構造
  • ガスコンロ
  • コンロ2口以上
  • システムキッチン
  • コンロ3口
  • バス・トイレ別
  • 追焚機能浴室
  • 浴室乾燥機
  • 温水洗浄便座
  • 洗髪洗面化粧台
  • エアコン
  • 床暖房
  • BS
  • インターネット対応
  • ネット使用料無料
  • オートロック
  • TVモニタ付インターホン
  • 宅配ボックス
備考 新築 ペット可 猫飼育可 無料Wi-Fi オートロック 宅配ボックス 駐輪場 床暖房 システムキッチン 3口ガスコンロ 浴室乾燥機 追い焚き 独立洗面台 収納豊富 
条件(その他) MyConcierClub:1万8,000円  室内清掃費用:10万1,200円 ECOレジグリッドにつきヘーベル電気必須
取扱会社
  • 株式会社ハビタット
  • 東京都渋谷区西原3丁目2-2 
  • TEL:03-3460-4913
  • 東京都知事 (6) 第78214号
  • (公社)東京都宅地建物取引業協会
    (公社)全国宅地建物取引業保証協会
    (公社)首都圏不動産公正取引協議会加盟
    不動産公正取引協議会
QRコード

QRコード

このQRコードを読み取ることで、スマホでも物件情報を確認できます。

地図

※地図上に表示される物件の位置は付近住所に所在することを表すものであり、実際の物件所在地とは異なる場合がございます。

物件お問い合わせ

必要項目の入力

0/0
必須項目完了

確認画面へ
お進み下さい

0/0
必須項目完了

確認画面へ
お進み下さい

要望

任意

お名前

必須

メールアドレス

必須

内容

任意

利用規約及びプライバシーポリシーを必ずお読みください。左記内容に同意いただいた場合は、確認画面へお進み下さい。

未入力項目があります

この物件を見た人はこちらの物件も見ています

ELYSEE DAIZAWA

ELYSEE DAIZAWAの画像

賃料
28.9万円
種別
マンション
間取
2LDK
住所
東京都世田谷区代沢1丁目
交通
駒場東大前駅
徒歩8分

GARDEN COURT

GARDEN COURTの画像

賃料
24万円
種別
マンション
間取
2LDK
住所
東京都世田谷区太子堂2丁目
交通
三軒茶屋駅
徒歩6分

ヴィラフィオーレ

ヴィラフィオーレの画像

賃料
21.4万円
種別
マンション
間取
3LDK
住所
東京都世田谷区用賀2丁目
交通
用賀駅
徒歩5分

カーサ・ドマーニ

カーサ・ドマーニの画像

賃料
20.2万円
種別
マンション
間取
1LDK
住所
東京都世田谷区池尻3丁目
交通
池尻大橋駅
徒歩9分

お問い合わせ

株式会社ハビタット

会社画像

03-3460-4913

10:00~18:30  定休日:無し

  • 〒151-0066
  • 東京都渋谷区西原3丁目2-2 

物件リクエスト

来店予約

トップへ戻る

来店予約